| وضعیت در دسترس بودن: | |
|---|---|
| مقدار: | |
C75-300
BMS
Ⅰ. طراحی مشخصات
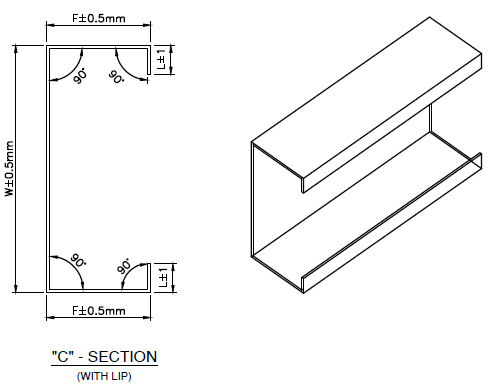
لب (L): 10 ~ 20 ± 1mm ساخته
ارتفاع (F): 30 ~ 80 ±0.5 میلی متر(هنگامی که ارتفاع بیش از 50MM، تحمل بیشتر خواهد شد، وجود دارد پایان شعله ور شدن و پدیده موج زمانی که تشکیل مشخصات U، اما می توان آن را از طریق تنظیم حداقل برسد).
وب (W): 75 ~ 300 ± 0.5MM
طول تحمل 6M: L ضخامت 2mm ±
عمودی: حداکثر ورق 3mm
کمان و قوز یا خمیدگی اندک: حداکثر 1mm ساخته در طول متر از پوشش چوبی در دو طرف
مخروطی: کمتر از ورق 3mm (برش شعله ور شدن لبه نباید بیشتر از ورق 3mm شود و این تحمل ورق 3mm تنها برای طول 100mm میرسیم از هر دو لبه برش قابل اجرا است. علاوه بر این، جدا از برش لبه، مخروطی باید بیش از 1mm ساخته در سراسر طول مصالح باشد.)
داخلی شعاع: ورق 3mm
پایان مشعل: - برای 550Mpa تر خواهد بود
مشت زدن اختیاری:
ایستگاه پانچ | حداقل فاصله زمین | حداکثر اندازه سوراخ | خواستگاری کردن | سخن گفتن و اندازه سوراخ | |
پانچ 1 | 40 میلیمتر | 30mm و کم نور | این مجموعه ای از ایستگاه پانچ 1 سوراخ هر طرف. | معمولی،برای سوراخ قطر 8 تا قطر 16mmو برای اسلات سوراخ پیراهن زنانه دامن بلند 16x25mm | |
پانچ 2 | 40 میلیمتر | 30mm و کم نور | این مجموعه ای از ایستگاه پانچ 1 سوراخ هر طرف. | معمولی،برای سوراخ قطر 8 تا قطر 16mmو برای اسلات سوراخ پیراهن زنانه دامن بلند 16x25mm | |
پانچ 3 (متوسط) | 40 میلیمتر | درایو 40mm کم نور | این مجموعه ای از ایستگاه پانچ برای 2 سوراخ در هر طرف. | فاصله زمین ایستگاه پانچ باید درایو 40mm (نیاز به ما اطلاع دهید آنچه را که حداکثر فاصله برای 2 سوراخ. برای قطر سوراخ 8 تا 20mmو برای مجبور لامپ پیراهن زنانه دامن بلند 16x25mm. | |
هر دستگاه پانچ مجهز به یک مجموعه ای از تنها قالب مشت زدن، مشت زدن ابزار اضافی با هزینه اضافی
Ⅱ. ماده:
ضخامت مواد: 1.0 -3.0mm
مواد قابل اجرا:240 تا 340 مگاپاسکال برای MS یا HR و Galvalume550MPAAZ150
Ⅲ.machine جریان کار:
Decoiler → دستگاه سطح بندی → سیستم قبل از مشت زدن → اصلی
ماشین تشکیل دهنده → برش هیدرولیک → رد خروجی.
IVاجزای ماشین
هیدرولیکDecoiler:یک مجموعه
به طور خودکار کنترل فولاد کویل داخلی انقباض انقباض و توقف،
با کابینه کنترل الکتریکی
حداکثر عرض تغذیه: 500mm، محدوده شناسه کویل: 508 +/- 30 میلی متر.
حداکثر ظرفیت :5tonsدرایو: 2.2 کیلو وات
نورد سرد:
با راهنمای تغذیه مواد(کنترل تغذیه اتوماتیک، صرفه جویی در هزینه کار)و دستگاه سطح
، قاب بدن ساخته شده از450 # H نوع فولادبا جوشکاری؛ ضخامت دیوار جانبی:30 میلیمتر
غلطک های تولید شده ازقالب فولاد CR12 (= D3) برای زندگی طولانی مدت، دقیق ماشینکاری، عملیات حرارتی به HRC58-60؛
شفت های تولید شده از 45 #، قطر اصلی شفت =φ90mm، دقت ماشینکاری وکروم سخت پوشش داده شده است;
رانندگی موتور، انتقال زنجیره دنده، 15 گروه غلطک به شکل و 5 غلطک (2 غلطک بالا و 3 غلطک) برای صاف کردن؛
موتور اصلی =22 کیلو وات موتور ناهمزمان با ترمز هیدرولیک (موتور کنترل سرعت فرکانس)،
کنترل سرعت فرکانس
سرعت تشکیلحدود 18 متر / دقیقه
اندازه موتور تغییر: 6pcs، واحد خودکار تشکیل (اندازه تنظیم شده توسط برنامه ریزی PLC)
باSquareness Roller Setup
3) دستگاه پانچ هیدرولیک و برش:
پیش از پانچ، توقف به پانچ،پیش از برش,3 جفت ایستگاه های مشت زدن.
راه اندازی دنده را برای عمل بالا / پایین برای عمل با دنده (به آن مراجعه کنید
عکس زیر)
پایهایستگاه مشت زدن در پیچ سرب مناسب برای آسان به گرفتن ایستگاه های مشت زدن برای پانچ و تغییر می کندومقیاس اندازه گیری را برای تنظیم آسان اضافه کنید
متوقف کردن برش، استفاده از همان موتور هیدرولیک هیدرولیک،دستگاه هیدرولیک پس از برش را اضافه کنید (Post Cutter همچنین خودکار قابل تنظیم است)، که نمایه برش را بهتر از نوع پیش برداشت می کند
موتور هیدرولیک:7.5 کیلو وات, 25 CC / REV,محدوده فشار کار:0-25mpa (250bar)
با سیستم خنک کننده رادیاتور
مشت زدن و برش ابزار مواد:قالب فولاد CR12Mov (= SKD 11 فولاد، با حداقل یک میلیون بار از عمر مشت زدن / برش)، عملیات حرارتی به HRC 58-62
4) سیستم کنترل PLC
مدل / اندازه مورد نیاز را روی صفحه لمسی وارد کنیداین می تواند به طور خودکار تغییر اندازه Purlin C در 60 ثانیه (بدون نیاز به تغییر غلطک و یا spacers و یا برش مانند دستگاه سنتی قدیمی قدیمی است که بیش از 45 دقیقه برای هر نوع تولید تغییر می کند).
کنترل مقدار و طول برش را به صورت خودکار کنترل کنید
همراه با: PLC، اینورتر، صفحه لمسی، رمزگذار، و غیره
اینورتر: نام تجاری Schneider Electric / Delta (نام تجاری تایوان)
رمزگذار: نام تجاری Koyo / Omron (ژاپن)
تحمل به طول تحمل ± 2 میلیمتر
کنترل ولتاژ 24V
5) خروج از قفسه:

با غلطک بر روی آن برای حرکت آسان
6) جعبه ابزار
ⅳ تصویر ماشین (فقط برای مرجع)
نمایش سمت برش 1.Post
2. مشاهده مواد جانبی مواد
با پوشش ایمنی پوشش بر روی دستگاهمجهز به سوئیچ سکته مغزیو پوشش ایمنی بر روی برش(مطابق با الزامات ایمنی CE.)
دستگاه تولید پروفیل:
Ⅰ. طراحی مشخصات
لب (L): 10 ~ 20 ± 1mm ساخته
ارتفاع (F): 30 ~ 80 ±0.5 میلی متر(هنگامی که ارتفاع بیش از 50MM، تحمل بیشتر خواهد شد، وجود دارد پایان شعله ور شدن و پدیده موج زمانی که تشکیل مشخصات U، اما می توان آن را از طریق تنظیم حداقل برسد).
وب (W): 75 ~ 300 ± 0.5MM
طول تحمل 6M: L ضخامت 2mm ±
عمودی: حداکثر ورق 3mm
کمان و قوز یا خمیدگی اندک: حداکثر 1mm ساخته در طول متر از پوشش چوبی در دو طرف
مخروطی: کمتر از ورق 3mm (برش شعله ور شدن لبه نباید بیشتر از ورق 3mm شود و این تحمل ورق 3mm تنها برای طول 100mm میرسیم از هر دو لبه برش قابل اجرا است. علاوه بر این، جدا از برش لبه، مخروطی باید بیش از 1mm ساخته در سراسر طول مصالح باشد.)
داخلی شعاع: ورق 3mm
پایان مشعل: - برای 550Mpa تر خواهد بود
مشت زدن اختیاری:
ایستگاه پانچ | حداقل فاصله زمین | حداکثر اندازه سوراخ | خواستگاری کردن | سخن گفتن و اندازه سوراخ | |
پانچ 1 | 40 میلیمتر | 30mm و کم نور | این مجموعه ای از ایستگاه پانچ 1 سوراخ هر طرف. | معمولی،برای سوراخ قطر 8 تا قطر 16mmو برای اسلات سوراخ پیراهن زنانه دامن بلند 16x25mm | |
پانچ 2 | 40 میلیمتر | 30mm و کم نور | این مجموعه ای از ایستگاه پانچ 1 سوراخ هر طرف. | معمولی،برای سوراخ قطر 8 تا قطر 16mmو برای اسلات سوراخ پیراهن زنانه دامن بلند 16x25mm | |
پانچ 3 (متوسط) | 40 میلیمتر | درایو 40mm کم نور | این مجموعه ای از ایستگاه پانچ برای 2 سوراخ در هر طرف. | فاصله زمین ایستگاه پانچ باید درایو 40mm (نیاز به ما اطلاع دهید آنچه را که حداکثر فاصله برای 2 سوراخ. برای قطر سوراخ 8 تا 20mmو برای مجبور لامپ پیراهن زنانه دامن بلند 16x25mm. | |
هر دستگاه پانچ مجهز به یک مجموعه ای از تنها قالب مشت زدن، مشت زدن ابزار اضافی با هزینه اضافی
Ⅱ. ماده:
ضخامت مواد: 1.0 -3.0mm
مواد قابل اجرا:240 تا 340 مگاپاسکال برای MS یا HR و Galvalume550MPAAZ150
Ⅲ.machine جریان کار:
Decoiler → دستگاه سطح بندی → سیستم قبل از مشت زدن → اصلی
ماشین تشکیل دهنده → برش هیدرولیک → رد خروجی.
IVاجزای ماشین
هیدرولیکDecoiler:یک مجموعه
به طور خودکار کنترل فولاد کویل داخلی انقباض انقباض و توقف،
با کابینه کنترل الکتریکی
حداکثر عرض تغذیه: 500mm، محدوده شناسه کویل: 508 +/- 30 میلی متر.
حداکثر ظرفیت :5tonsدرایو: 2.2 کیلو وات
نورد سرد:
با راهنمای تغذیه مواد(کنترل تغذیه اتوماتیک، صرفه جویی در هزینه کار)و دستگاه سطح
، قاب بدن ساخته شده از450 # H نوع فولادبا جوشکاری؛ ضخامت دیوار جانبی:30 میلیمتر
غلطک های تولید شده ازقالب فولاد CR12 (= D3) برای زندگی طولانی مدت، دقیق ماشینکاری، عملیات حرارتی به HRC58-60؛
شفت های تولید شده از 45 #، قطر اصلی شفت =φ90mm، دقت ماشینکاری وکروم سخت پوشش داده شده است;
رانندگی موتور، انتقال زنجیره دنده، 15 گروه غلطک به شکل و 5 غلطک (2 غلطک بالا و 3 غلطک) برای صاف کردن؛
موتور اصلی =22 کیلو وات موتور ناهمزمان با ترمز هیدرولیک (موتور کنترل سرعت فرکانس)،
کنترل سرعت فرکانس
سرعت تشکیلحدود 18 متر / دقیقه
اندازه موتور تغییر: 6pcs، واحد خودکار تشکیل (اندازه تنظیم شده توسط برنامه ریزی PLC)
باSquareness Roller Setup
3) دستگاه پانچ هیدرولیک و برش:
پیش از پانچ، توقف به پانچ،پیش از برش,3 جفت ایستگاه های مشت زدن.
راه اندازی دنده را برای عمل بالا / پایین برای عمل با دنده (به آن مراجعه کنید
عکس زیر)
پایهایستگاه مشت زدن در پیچ سرب مناسب برای آسان به گرفتن ایستگاه های مشت زدن برای پانچ و تغییر می کندومقیاس اندازه گیری را برای تنظیم آسان اضافه کنید
متوقف کردن برش، استفاده از همان موتور هیدرولیک هیدرولیک،دستگاه هیدرولیک پس از برش را اضافه کنید (Post Cutter همچنین خودکار قابل تنظیم است)، که نمایه برش را بهتر از نوع پیش برداشت می کند
موتور هیدرولیک:7.5 کیلو وات, 25 CC / REV,محدوده فشار کار:0-25mpa (250bar)
با سیستم خنک کننده رادیاتور
مشت زدن و برش ابزار مواد:قالب فولاد CR12Mov (= SKD 11 فولاد، با حداقل یک میلیون بار از عمر مشت زدن / برش)، عملیات حرارتی به HRC 58-62
4) سیستم کنترل PLC
مدل / اندازه مورد نیاز را روی صفحه لمسی وارد کنیداین می تواند به طور خودکار تغییر اندازه Purlin C در 60 ثانیه (بدون نیاز به تغییر غلطک و یا spacers و یا برش مانند دستگاه سنتی قدیمی قدیمی است که بیش از 45 دقیقه برای هر نوع تولید تغییر می کند).
کنترل مقدار و طول برش را به صورت خودکار کنترل کنید
همراه با: PLC، اینورتر، صفحه لمسی، رمزگذار، و غیره
اینورتر: نام تجاری Schneider Electric / Delta (نام تجاری تایوان)
رمزگذار: نام تجاری Koyo / Omron (ژاپن)
تحمل به طول تحمل ± 2 میلیمتر
کنترل ولتاژ 24V
5) خروج از قفسه:

با غلطک بر روی آن برای حرکت آسان
6) جعبه ابزار
ⅳ تصویر ماشین (فقط برای مرجع)
نمایش سمت برش 1.Post
2. مشاهده مواد جانبی مواد
با پوشش ایمنی پوشش بر روی دستگاهمجهز به سوئیچ سکته مغزیو پوشش ایمنی بر روی برش(مطابق با الزامات ایمنی CE.)
دستگاه تولید پروفیل: